Viviendas unifamiliares

Ofrecemos amplios servicios de viviendas unifamiliares adaptados a tus necesidades, desde el diseño inicial hasta la ejecución final del proyecto.

Viviendas

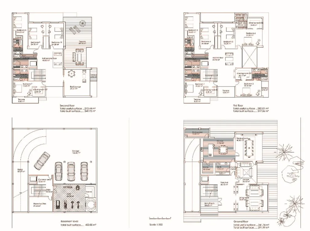
Vivienda unifamiliar aislada en urb. golf guadiana

Vivienda unifamiliar aislada parcela 10 en urb. golf guadiana (Badajoz)

01
02
03
04

Todo-en-uno

Services

Nulla facilisi. Sed eget nunc tempor ante varius efficitur. Praesent efficitur augue at sapien auctor, efficitur posuere lectus vulputate. Praesent vitae accumsan nisl. Morbi commodo mollis ex, sed mattis ipsum aliquam eget. Duis varius molestie elit vel ultricies. Vestibulum iaculis urna sapien, et ultricies lorem sollicitudin ac. Sed aliquet commodo dui, ut semper nisl. Mauris congue eros eget gravida lacinia. 

Descubre cómo trabajamos.

Ir al contenido